Appartamento 3 letto con ampio giardino privato a San Martino in Villafranca
Foto immobile/Planimetrie Guarda il Tour 3D
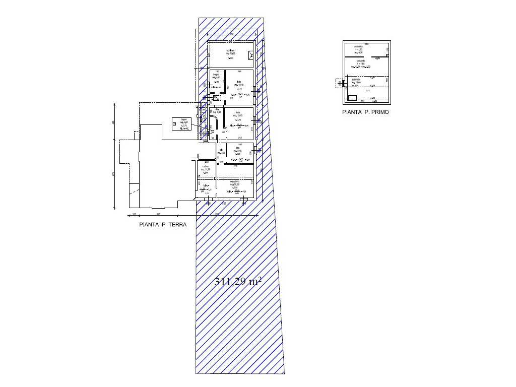
Caratteristiche immobile
Camere: 3
Bagni: 2
Riscaldamento: Autonomo
Tipo Riscaldamento: Radiatori
Combustibile Riscald.: GAS
91 MQ
120 MQ comm.
Stato immobile: Abitabile
Giardino: Privato
Giardino MQ: 750
Posto auto: SI
Classe ener.: In fase di definizione
Locali: 5
Piano: Terra
Totale piani: 2
Tot. unità presenti: 3
Anno costr.: 1960
Anno ristr.: 1980
Cucina: Abitabile
Spese condominiali: assenti
Esposizione:
Nord Est Sud Ovest
Accesso disabili
Presentazione
Se cerchi l’indipendenza totale e il profumo della campagna, questa è la casa per te. Dama Immobiliare propone un generoso appartamento al piano terra in una palazzina di sole tre unità a San Martino in Villafranca.
L'immobile, libero da subito e pronto da abitare, si distingue per l'assenza di spese condominiali e un accesso totalmente autonomo. All'interno troverai spazi vivibili: soggiorno accogliente, cucina abitabile, tre camere da letto e due bagni finestrati, un pratico sottotetto con scala retrattile motorizzata.
Il vero plus? Oltre 750 mq di verde privato: un giardino di 300 mq fronte casa e un terreno adiacente di 450 mq, perfetto per chi sogna un orto o uno spazio per gli animali. Completano la proprietà un posto auto coperto e un'area parcheggio comune.
Dama Immobiliare
📍 Viale Livio Salinatore, 36 - Forlì (FC)
📞 Tel: 0543 28029
📧 info@damaimmobiliare.com
🌐 www.damaimmobiliare.com
L'immobile, libero da subito e pronto da abitare, si distingue per l'assenza di spese condominiali e un accesso totalmente autonomo. All'interno troverai spazi vivibili: soggiorno accogliente, cucina abitabile, tre camere da letto e due bagni finestrati, un pratico sottotetto con scala retrattile motorizzata.
Il vero plus? Oltre 750 mq di verde privato: un giardino di 300 mq fronte casa e un terreno adiacente di 450 mq, perfetto per chi sogna un orto o uno spazio per gli animali. Completano la proprietà un posto auto coperto e un'area parcheggio comune.
Dama Immobiliare
📍 Viale Livio Salinatore, 36 - Forlì (FC)
📞 Tel: 0543 28029
📧 info@damaimmobiliare.com
🌐 www.damaimmobiliare.com
Dove si trova?
Contatto e richiesta informazioni
Invia una richiesta all'agenzia
CI_40_2
Autorizzo il trattamento dei miei dati personali in base art. 13 del reg. eu 679/2016