Luminoso appartamento ristrutturato in vendita in zona Campus Universitario - Forlì
Foto immobile/Planimetrie
Caratteristiche immobile
Camere: 2
Bagni: 1
Riscaldamento: Centralizzato
Tipo Riscaldamento: Radiatori
Combustibile Riscald.: GAS
101 MQ
115 MQ comm.
Stato immobile: Ristrutturato
Classe ener.: In fase di definizione
Locali: 5
Balcone: SI
Terrazzo: SI, 2 terrazzi
Cantina: SI
Arredamento: SI
Ascensore: SI
Condizionatore: SI
Piano: Quarto
Totale piani: 6
Tot. unità presenti: 28
Anno costr.: 1970
Anno ristr.: 2011
Cucina: Abitabile
Spese condominiali: 66 €
Spese rata: Mensile
Nota spese cond.: escluse spese riscaldamento e acqua condominiale
Esposizione:
Nord Ovest
Porta Blindata
VideoCitofono
Fibra Ottica
Presentazione
Dama Immobiliare propone in vendita esclusiva un appartamento luminoso e recentemente ristrutturato in zona Campus Universitario a pochi minuti dal centro storico di Forlì in posizione strategica ideale per chi cerca un contesto vivace e ben servito con tutti i principali servizi nelle immediate vicinanze
L’immobile si trova al piano alto di una palazzina ben tenuta servita da ascensore e gode di una splendida vista aperta sui tetti della città garantendo grande luminosità e tranquillità
L’appartamento è in condizioni impeccabili grazie a una ristrutturazione completa e curata in ogni dettaglio con finiture moderne e ambienti funzionali
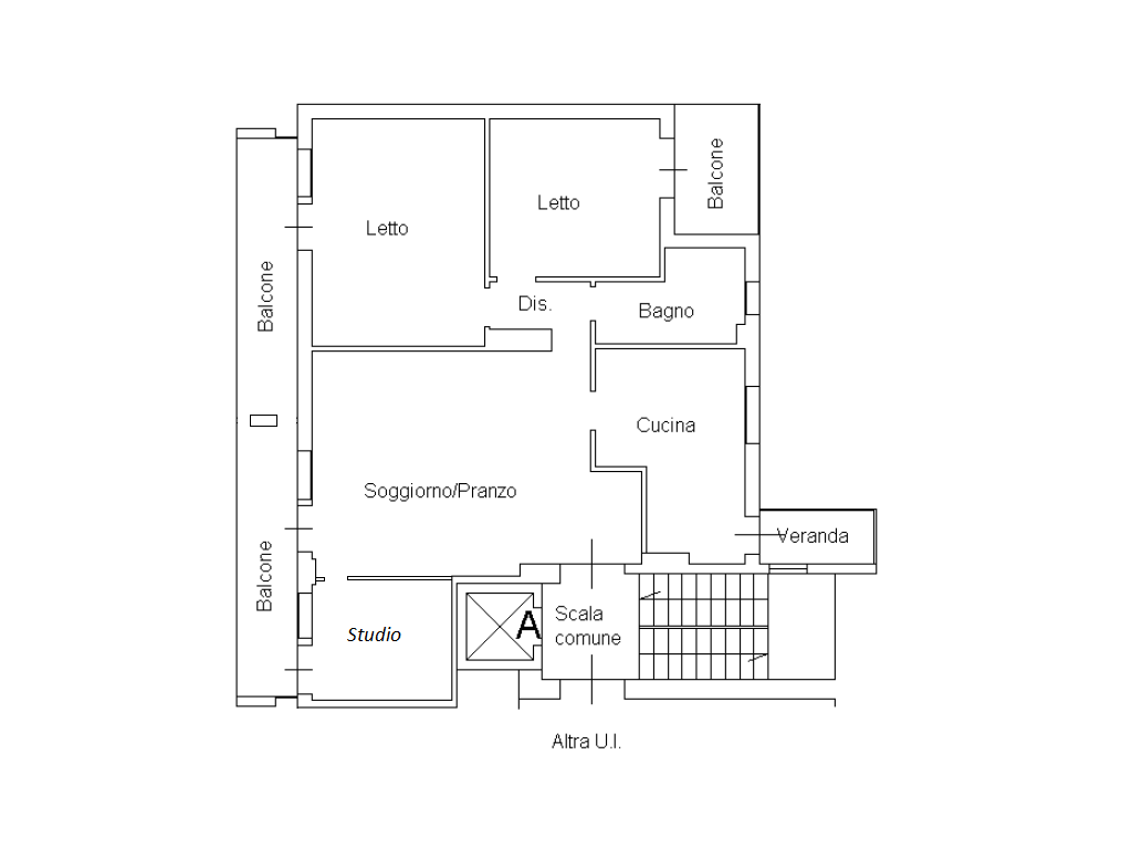
La composizione interna prevede un ingresso su ampia zona giorno luminosa e accogliente con porta finestra che affaccia su un grande balcone una cucina abitabile con accesso a veranda chiusa adibita a lavanderia attrezzata con lavatrice asciugatrice e zona ripostiglio due camere da letto matrimoniali entrambe con terrazzo uno studio facilmente trasformabile in terza camera da letto un bagno moderno e funzionale e una comoda cantina al piano interrato
La palazzina è dotata di caldaia condominiale a basso consumo con riscaldamento regolabile autonomamente grazie a contabilizzatori di ultima generazione garanzia di comfort e risparmio energetico
Tra gli interventi recenti si segnalano il rifacimento completo degli impianti elettrico e idraulico pavimenti nuovi in tutti gli ambienti infissi in pvc con vetrocamera controsoffitti con faretti a led incassati per un tocco di eleganza e modernità
Completa la proposta la possibilità di affitto di posti auto adiacenti alla palazzina o al interno di essa nel area garage.
Soluzione ideale sia come abitazione principale che come investimento in una delle aree più richieste e dinamiche di Forlì
Per maggiori informazioni o per fissare una visita contatta i nostri uffici al numero 0543 28029 oppure scrivi a info@damaimmobiliare.com
Dama Immobiliare esperienza e professionalità al tuo servizio
L’immobile si trova al piano alto di una palazzina ben tenuta servita da ascensore e gode di una splendida vista aperta sui tetti della città garantendo grande luminosità e tranquillità
L’appartamento è in condizioni impeccabili grazie a una ristrutturazione completa e curata in ogni dettaglio con finiture moderne e ambienti funzionali
La composizione interna prevede un ingresso su ampia zona giorno luminosa e accogliente con porta finestra che affaccia su un grande balcone una cucina abitabile con accesso a veranda chiusa adibita a lavanderia attrezzata con lavatrice asciugatrice e zona ripostiglio due camere da letto matrimoniali entrambe con terrazzo uno studio facilmente trasformabile in terza camera da letto un bagno moderno e funzionale e una comoda cantina al piano interrato
La palazzina è dotata di caldaia condominiale a basso consumo con riscaldamento regolabile autonomamente grazie a contabilizzatori di ultima generazione garanzia di comfort e risparmio energetico
Tra gli interventi recenti si segnalano il rifacimento completo degli impianti elettrico e idraulico pavimenti nuovi in tutti gli ambienti infissi in pvc con vetrocamera controsoffitti con faretti a led incassati per un tocco di eleganza e modernità
Completa la proposta la possibilità di affitto di posti auto adiacenti alla palazzina o al interno di essa nel area garage.
Soluzione ideale sia come abitazione principale che come investimento in una delle aree più richieste e dinamiche di Forlì
Per maggiori informazioni o per fissare una visita contatta i nostri uffici al numero 0543 28029 oppure scrivi a info@damaimmobiliare.com
Dama Immobiliare esperienza e professionalità al tuo servizio
Dove si trova?
Contatto e richiesta informazioni
Invia una richiesta all'agenzia
A2_08
Autorizzo il trattamento dei miei dati personali in base art. 13 del reg. eu 679/2016