Locale commerciale in vendita su Corso della Repubblica – alta visibilità e posizione di prestigio
Foto immobile/Planimetrie
Caratteristiche immobile
Camere: 2
Bagni: 1
Riscaldamento: Autonomo
Tipo Riscaldamento: Radiatori
Combustibile Riscald.: Metano
29 MQ
36 MQ comm.
Stato immobile: Buono
Giardino: Comune
Classe ener.: In fase di definizione
Locali: 2
Piano: Terra
Totale piani: 3
Tot. unità presenti: 6
Esposizione:
Est Ovest
Porta Blindata
Cancello Elettrico
Fibra Ottica
Accesso disabili
Presentazione
FORLI' - C.SO DELLA REPUBBLICA - In posizione di prestigio e altissima visibilità, proponiamo locale commerciale su Corso della Repubblica, ideale per attività che necessitano di forte passaggio e rappresentanza.
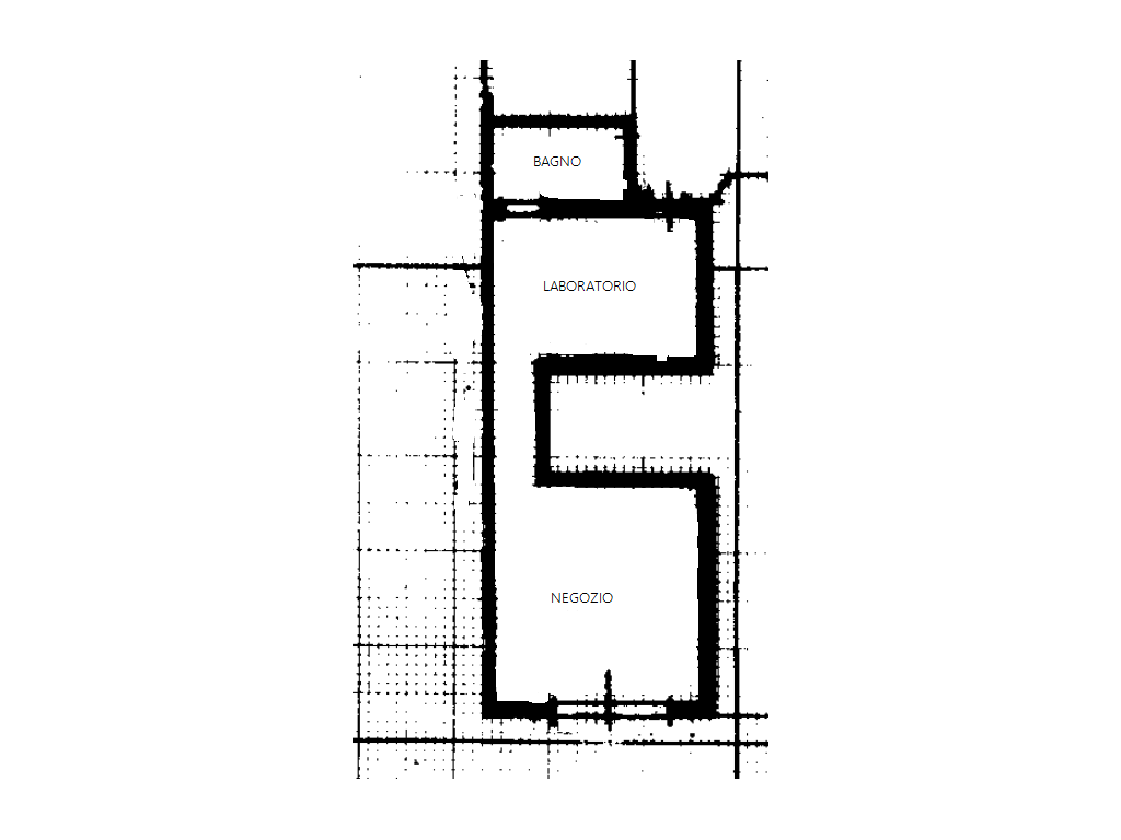
L’immobile è pronto all’uso, composto da due locali e bagno finestrato. Riscaldamento autonomo e basse spese di gestione. Completa la proprietà un ingresso carrabile sul retro, comodo per carico e scarico.
Soluzione ideale per uso diretto o investimento in una delle zone più richieste della città.
Contattaci 0543.28029 o via email a info@damaimmobiliare.com, per fissare un appuntamento in agenzia e per visionare l'immobile.
L’immobile è pronto all’uso, composto da due locali e bagno finestrato. Riscaldamento autonomo e basse spese di gestione. Completa la proprietà un ingresso carrabile sul retro, comodo per carico e scarico.
Soluzione ideale per uso diretto o investimento in una delle zone più richieste della città.
Contattaci 0543.28029 o via email a info@damaimmobiliare.com, per fissare un appuntamento in agenzia e per visionare l'immobile.
Dove si trova?
Contatto e richiesta informazioni
Invia una richiesta all'agenzia
NE_08
Autorizzo il trattamento dei miei dati personali in base art. 13 del reg. eu 679/2016