Ufficio in affitto a Forlì – C.so della Repubblica, adiacente a Piazza Saffi
Foto immobile/Planimetrie
Caratteristiche immobile
Camere: 4
Bagni: 1
Riscaldamento: Autonomo
Tipo Riscaldamento: Radiatori
Combustibile Riscald.: Metano
80 MQ
90 MQ comm.
Stato immobile: Ottimo
Giardino: Comune
Classe ener.: E
Consumo ipe: 201.97 kwh/mq
Locali: 4
Balcone: SI
Condizionatore: SI
Piano: Primo
Totale piani: 3
Tot. unità presenti: 5
Anno costr.: 1900
Anno ristr.: 2020
Esposizione:
Est Ovest
Porta Blindata
Cancello Elettrico
Fibra Ottica
Idromassaggio
Presentazione
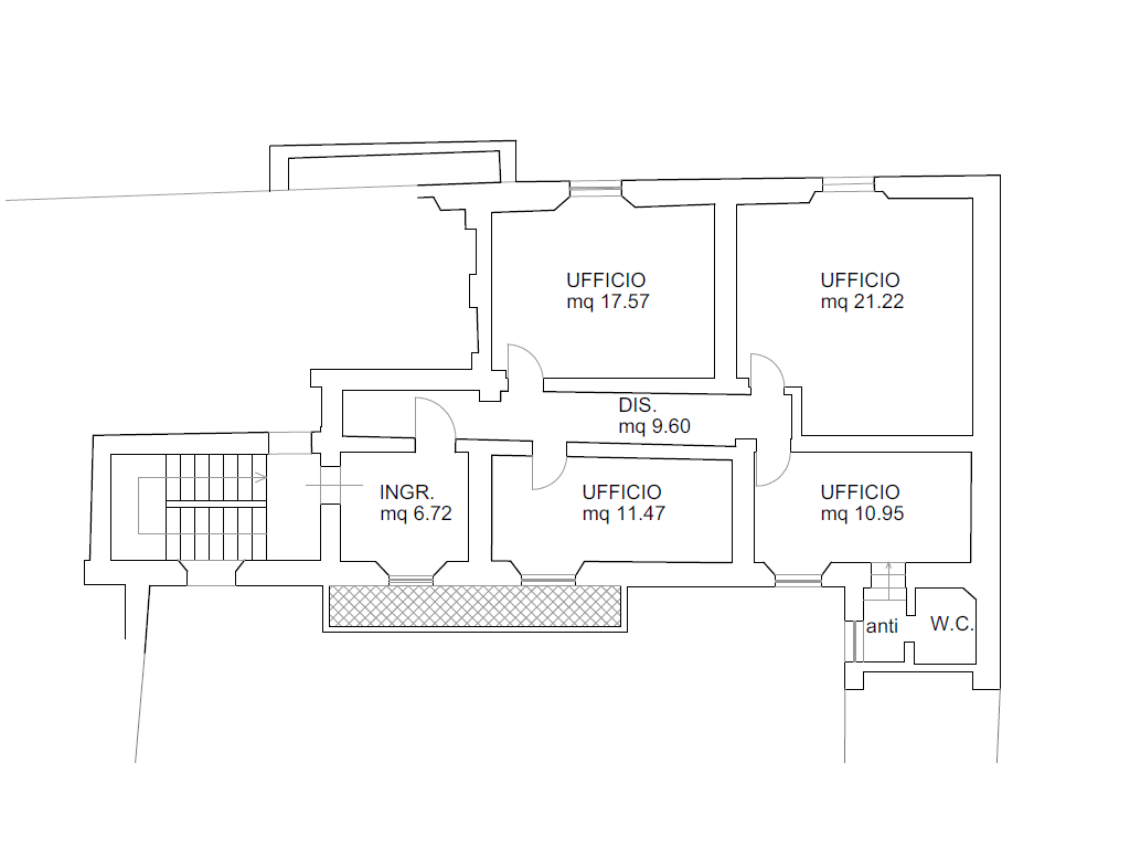
FORLì - ZONA C.SO REPUBBLICA - In prestigioso palazzo storico e signorile, proponiamo in affitto un elegante ufficio al primo piano, completamente ristrutturato e pronto all’uso. L’immobile dispone di tre uffici, una sala d’attesa all’ingresso, un bagno e un ambiente di collegamento dal corridoio al bagno, ideale come deposito, area caffè o piccolo locale di servizio. Gli spazi sono luminosi, funzionali e perfetti per studi professionali o attività direzionali.
È inoltre possibile ampliare la metratura unendo il locale adiacente, creando ambienti ancora più ampi e personalizzabili. La posizione è strategica, nel cuore di Forlì, a pochi passi da Piazza Saffi, con ottima visibilità e facilità di accesso.
Contattaci 0543.28029 o via email a info@damaimmobiliare.com, per fissare un appuntamento in agenzia e per visionare l'immobile.
È inoltre possibile ampliare la metratura unendo il locale adiacente, creando ambienti ancora più ampi e personalizzabili. La posizione è strategica, nel cuore di Forlì, a pochi passi da Piazza Saffi, con ottima visibilità e facilità di accesso.
Contattaci 0543.28029 o via email a info@damaimmobiliare.com, per fissare un appuntamento in agenzia e per visionare l'immobile.
Dove si trova?
Contatto e richiesta informazioni
Invia una richiesta all'agenzia
AF_33_UF_2
Autorizzo il trattamento dei miei dati personali in base art. 13 del reg. eu 679/2016