Ufficio in affitto a Forlì – C.so della Repubblica, adiacente a Piazza Saffi
Foto immobile/Planimetrie
Caratteristiche immobile
Camere: 3
Bagni: 1
Riscaldamento: Autonomo
Tipo Riscaldamento: Radiatori
Combustibile Riscald.: Metano
60 MQ
65 MQ comm.
Stato immobile: Ottimo
Giardino: Comune
Classe ener.: E
Consumo ipe: 198.69 kwh/mq
Locali: 3
Balcone: SI
Condizionatore: SI
Piano: Primo
Totale piani: 3
Tot. unità presenti: 5
Anno costr.: 1900
Anno ristr.: 2020
Esposizione:
Est
Porta Blindata
Cancello Elettrico
Fibra Ottica
Presentazione
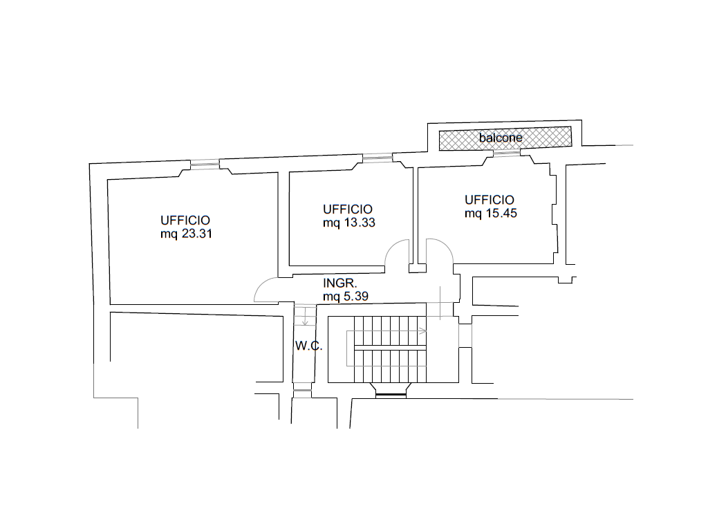
FORLì - C.SO REPUBBLICA - In prestigioso palazzo storico e signorile, proponiamo in affitto elegante ufficio al primo piano, completamente ristrutturato e pronto all’uso. L’immobile è composto da tre uffici e un bagno, con spazi luminosi e finiture curate, ideale per studi professionali o attività direzionali.
È inoltre possibile ampliare la metratura unendo il locale adiacente, creando ambienti ancora più ampi e funzionali.
Posizione strategica nel cuore di Forlì, a pochi passi da Piazza Saffi, con ottima visibilità e facilità di accesso.
Contattaci 0543.28029 o via email a info@damaimmobiliare.com, per fissare un appuntamento in agenzia e per visionare l'immobile.
È inoltre possibile ampliare la metratura unendo il locale adiacente, creando ambienti ancora più ampi e funzionali.
Posizione strategica nel cuore di Forlì, a pochi passi da Piazza Saffi, con ottima visibilità e facilità di accesso.
Contattaci 0543.28029 o via email a info@damaimmobiliare.com, per fissare un appuntamento in agenzia e per visionare l'immobile.
Dove si trova?
Contatto e richiesta informazioni
Invia una richiesta all'agenzia
AF_33_UF_1
Autorizzo il trattamento dei miei dati personali in base art. 13 del reg. eu 679/2016