Barisano_Recente Villetta Terra Cielo con Giardino Privato e Ingresso Indipendente
Foto immobile/Planimetrie Guarda il Tour 3D
Caratteristiche immobile
Camere: 3
Bagni: 3
Riscaldamento: Autonomo
Tipo Riscaldamento: Radiatori
Combustibile Riscald.: GAS
95 MQ
135 MQ comm.
Stato immobile: Semi Nuovo
Giardino: Privato
Giardino MQ: 65
Posto auto: SI
Garage: SI
Classe ener.: D
Consumo ipe: 172.9 kwh/mq
Locali: 8
Balcone: SI, 2 balconi
Terrazzo: SI
Mansarda: SI
Arredamento: Parziale
Condizionatore: SI
Piano: Terra
Totale piani: 3
Tot. unità presenti: 1
Anno costr.: 2009
Cucina: A vista
Spese condominiali: assenti
Esposizione:
Nord Sud
Porta Blindata
Cancello Elettrico
VideoCitofono
Fibra Ottica
Accesso disabili
Presentazione
Nella prima periferia di Forlì, in zona adiacente alla frazione di Malmissole e a 5 minuti dal casello autostradale, proponiamo in vendita villetta a schiera centrale del 2009, in ottime condizioni e pronta da abitare.
Si trova in una zona tranquilla e verde, a pochi minuti dal centro e dai principali servizi: la soluzione ideale per chi cerca indipendenza senza rinunciare alla comodità.
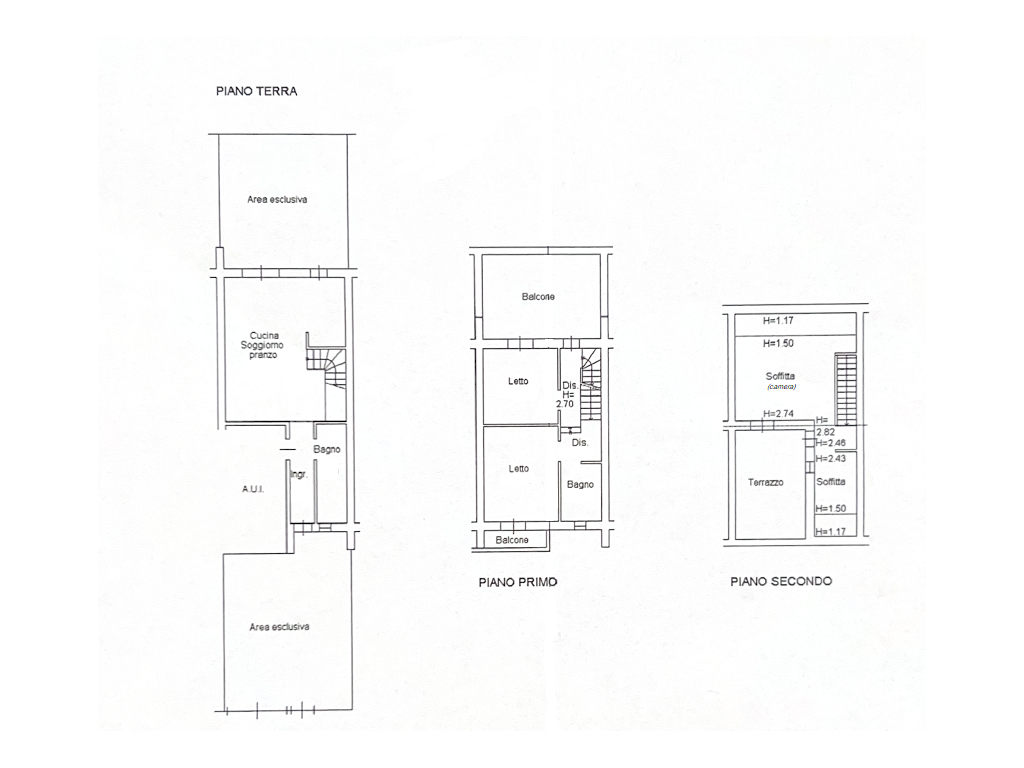
Piano Terra con ingresso indipendente, garage fuori terra collegato direttamente con l'abitazione, giardino frontale con posto auto interno, ampia zona giorno con cucina a vista ma separata, bagno finestrato con doccia, scoperto pavimentato sul retro perfetto per pranzi estivi all’aperto.
Piano Primo: camera matrimoniale, camera singola spaziosa (circa 12 mq), bagno finestrato con vasca, balcone, ampio terrazzo vivibile
Piano Mansardato: grande camera matrimoniale con capienti armadiature a muro, ripostiglio con predisposizione per terzo bagno, terrazzo "a tasca" prendisole
Dotazioni: riscaldamento autonomo con caldaia esterna, infissi in legno con vetrocamera, porta blindata, parquet nella zona notte, zanzariere, aria condizionata.
La casa è curata, ben tenuta e pronta per essere vissuta nel immediato. Perfetta per una famiglia che desidera spazi comodi, tranquillità e un bel giardino da vivere ogni giorno.
Chiama i nostri uffici per prenotare una visita a 0543 28029 oppure scrivi a info@damaimmobiliare.com, saremo lieti di accompagnarti nel tuo percorso di cambio abitazione.
Si trova in una zona tranquilla e verde, a pochi minuti dal centro e dai principali servizi: la soluzione ideale per chi cerca indipendenza senza rinunciare alla comodità.
Piano Terra con ingresso indipendente, garage fuori terra collegato direttamente con l'abitazione, giardino frontale con posto auto interno, ampia zona giorno con cucina a vista ma separata, bagno finestrato con doccia, scoperto pavimentato sul retro perfetto per pranzi estivi all’aperto.
Piano Primo: camera matrimoniale, camera singola spaziosa (circa 12 mq), bagno finestrato con vasca, balcone, ampio terrazzo vivibile
Piano Mansardato: grande camera matrimoniale con capienti armadiature a muro, ripostiglio con predisposizione per terzo bagno, terrazzo "a tasca" prendisole
Dotazioni: riscaldamento autonomo con caldaia esterna, infissi in legno con vetrocamera, porta blindata, parquet nella zona notte, zanzariere, aria condizionata.
La casa è curata, ben tenuta e pronta per essere vissuta nel immediato. Perfetta per una famiglia che desidera spazi comodi, tranquillità e un bel giardino da vivere ogni giorno.
Chiama i nostri uffici per prenotare una visita a 0543 28029 oppure scrivi a info@damaimmobiliare.com, saremo lieti di accompagnarti nel tuo percorso di cambio abitazione.
Dove si trova?
Contatto e richiesta informazioni
Invia una richiesta all'agenzia
VSC_66
Autorizzo il trattamento dei miei dati personali in base art. 13 del reg. eu 679/2016