Casolare Di Campagna Ristrutturato del 1700
Foto immobile/Planimetrie Guarda il Tour 3D
Caratteristiche immobile
Camere: 4
Bagni: 4
Riscaldamento: Autonomo
Tipo Riscaldamento: Radiatori
Combustibile Riscald.: GAS
287 MQ
392 MQ comm.
Stato immobile: Ristrutturato
Giardino: Privato
Giardino MQ: 2100
Posto auto: oltre 2 posti
Garage: Doppio
Classe ener.: F
Consumo ipe: 306.35 kwh/mq
Locali: 12
Cantina: SI
Arredamento: Parziale
Condizionatore: SI
Piano: Terra
Su più livelli
Totale piani: 2
Tot. unità presenti: 1
Anno costr.: 1700
Anno ristr.: 1995
Cucina: Abitabile
Spese condominiali: assenti
Esposizione:
Nord Est Sud Ovest
Porta Blindata
Cancello Elettrico
Camino/Caminetto
Fibra Ottica
Accesso disabili
Presentazione
zona CAVA - a pochi minuti da Forlì, immersa nella tranquillità e protetta da una splendida cornice verde, Dama Immobiliare – leader da oltre vent’anni nel mercato forlivese – presenta una villa elegante e sorprendentemente spaziosa, incorniciata da un viale alberato e da un ampio giardino privato.
Ristrutturata completamente nel 1995 con materiali di pregio, la proprietà offre infissi in legno massello con doppio vetro maggiorato, studiati per garantire luminosità e comfort in ogni stagione.
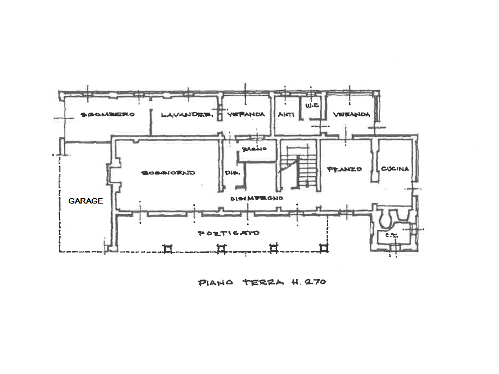
Zona giorno – Piano Terra
Un ingresso accogliente introduce al grande soggiorno con camino, perfetto per chi ama vivere la casa. Seguono un comodo bagno di servizio, la prima veranda che conduce alla lavanderia e al garage, oltre a un pratico sottoscala.
La sala da pranzo si apre sulla seconda veranda e sul secondo bagno, mentre la cucina – dotata di camino e forno per i lievitati – rappresenta il cuore caldo della casa, ideale per cene conviviali e momenti in famiglia.
Zona notte – Primo Piano
Due corridoi separati garantiscono privacy e funzionalità all’intero piano.
Da un lato si trovano: un utile ripostiglio, il bagno padronale con vasca e doppio lavandino, una camera singola oggi utilizzata come cabina armadio e una luminosa camera matrimoniale.
Dall’altro lato: una camera doppia, uno studio perfetto per chi lavora da casa, il quarto bagno che conduce alla caratteristica torretta e un balcone con affaccio sul verde.
A completare la proprietà: un secondo garage e un pozzo perfettamente funzionante.
Chiama la nostra agenzia per ulteriori informazioni e per fissare una visita al 0543 28029 e info@damaimmobiliare.com
Ristrutturata completamente nel 1995 con materiali di pregio, la proprietà offre infissi in legno massello con doppio vetro maggiorato, studiati per garantire luminosità e comfort in ogni stagione.
Zona giorno – Piano Terra
Un ingresso accogliente introduce al grande soggiorno con camino, perfetto per chi ama vivere la casa. Seguono un comodo bagno di servizio, la prima veranda che conduce alla lavanderia e al garage, oltre a un pratico sottoscala.
La sala da pranzo si apre sulla seconda veranda e sul secondo bagno, mentre la cucina – dotata di camino e forno per i lievitati – rappresenta il cuore caldo della casa, ideale per cene conviviali e momenti in famiglia.
Zona notte – Primo Piano
Due corridoi separati garantiscono privacy e funzionalità all’intero piano.
Da un lato si trovano: un utile ripostiglio, il bagno padronale con vasca e doppio lavandino, una camera singola oggi utilizzata come cabina armadio e una luminosa camera matrimoniale.
Dall’altro lato: una camera doppia, uno studio perfetto per chi lavora da casa, il quarto bagno che conduce alla caratteristica torretta e un balcone con affaccio sul verde.
A completare la proprietà: un secondo garage e un pozzo perfettamente funzionante.
Chiama la nostra agenzia per ulteriori informazioni e per fissare una visita al 0543 28029 e info@damaimmobiliare.com
Dove si trova?
Contatto e richiesta informazioni
Invia una richiesta all'agenzia
CI_12
Autorizzo il trattamento dei miei dati personali in base art. 13 del reg. eu 679/2016