Forli' - Spendido casolare con ampio terreno privato
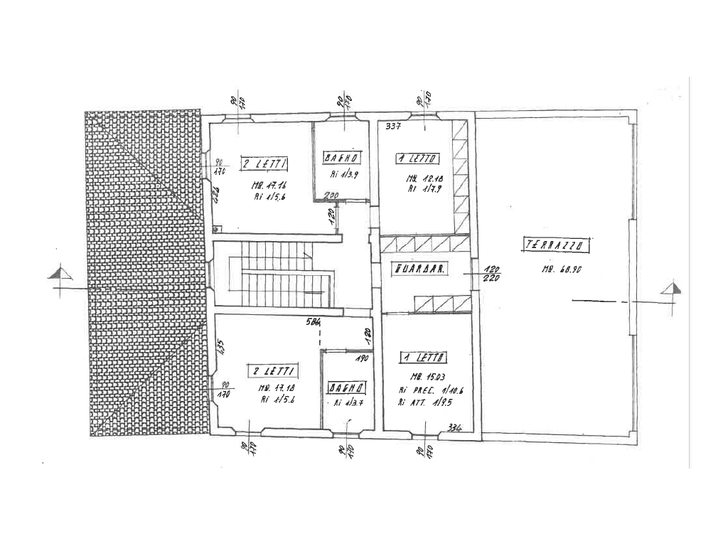
Foto immobile/Planimetrie
Caratteristiche immobile
Camere: 6
Bagni: 3
Riscaldamento: Autonomo
262 MQ
346 MQ comm.
Stato immobile: Grezzo
Giardino: Privato
Garage: SI
Classe ener.: ND esente
Locali: 8
Terrazzo: SI
Cantina: SI
Piano: Terra
Totale piani: 2
Tot. unità presenti: 1
Anno costr.: 1939
Anno ristr.: 1994
Cucina: Abitabile
Spese condominiali: assenti
Esposizione:
Nord Est Sud Ovest
Presentazione
Forli' - Zona Pianta, proponiamo in vendita Splendido Casolare con ampio terreno privato, allo stato grezzo e con finiture e impiantistica da personalizzare.
Oltre alla destinazione abitativa la struttura si presta anche ad essere trasformata in attività di ristorazione, grazie all'ottima posizione strategica (ad 1 minuto dalla tangenziale) ed al grande spazio all'aperto di pertinenza dell'immobile, ottimale per organizzare ricevimenti ed eventi.
Lavori già effettuati: Restauro della struttura con rifacimento del tetto, solai e muri, predisposizione intonaci e tracce per impianto elettrico, scarichi e canne di aspirazione installate, muri di confine e recinzioni, sistemazione corte esterna con stabilizzato, nuova rete fognaria dimensionata per il cambio d'uso, varie tubatura interrate, presenza di un pozzo per irrigazione giardino, linea utenze già presente e pronte per essere attivate.
Contattaci 0543.28029 o via email a info@damaimmobiliare.com, per fissare un appuntamento in agenzia per ricevere maggiori informazioni e dettagli.
Oltre alla destinazione abitativa la struttura si presta anche ad essere trasformata in attività di ristorazione, grazie all'ottima posizione strategica (ad 1 minuto dalla tangenziale) ed al grande spazio all'aperto di pertinenza dell'immobile, ottimale per organizzare ricevimenti ed eventi.
Lavori già effettuati: Restauro della struttura con rifacimento del tetto, solai e muri, predisposizione intonaci e tracce per impianto elettrico, scarichi e canne di aspirazione installate, muri di confine e recinzioni, sistemazione corte esterna con stabilizzato, nuova rete fognaria dimensionata per il cambio d'uso, varie tubatura interrate, presenza di un pozzo per irrigazione giardino, linea utenze già presente e pronte per essere attivate.
Contattaci 0543.28029 o via email a info@damaimmobiliare.com, per fissare un appuntamento in agenzia per ricevere maggiori informazioni e dettagli.
Dove si trova?
Contatto e richiesta informazioni
Invia una richiesta all'agenzia
CI_35
Autorizzo il trattamento dei miei dati personali in base art. 13 del reg. eu 679/2016