Elegante casa bifamiliare cielo terra nel cuore del centro storico – zona Musei San Domenico
Foto immobile/Planimetrie Guarda il Tour 3D
Caratteristiche immobile
Camere: 3
Bagni: 2
Riscaldamento: Autonomo
Tipo Riscaldamento: Radiatori
Combustibile Riscald.: GAS
132 MQ
155 MQ comm.
Stato immobile: Buono
Giardino: Privato
Giardino MQ: 15
Garage: SI
Classe ener.: F
Consumo ipe: 196.63 kwh/mq
Locali: 6
Terrazzo: SI
Arredamento: SI
Piano: Terra
Su più livelli
Totale piani: 2
Tot. unità presenti: 3
Cucina: Abitabile
Spese condominiali: assenti
Esposizione:
Nord Sud Ovest
Porta Blindata
Fibra Ottica
Accesso disabili
Presentazione
Centro storico lato Musei San Domenico
L’agenzia Dama Immobiliare è lieta di proporre in vendita una graziosa casa bifamiliare libera da cielo a terra situata in zona centrale di pregio e adiacente a comodi parcheggi pubblici
L’immobile si presenta in ottimo stato ed è inserito in un contesto silenzioso e privo di traffico ideale per chi desidera vivere il centro senza rinunciare alla tranquillità
La proprietà è così composta
Al piano terra garage con basculante automatizzata che garantisce un agevole accesso alle autovetture
ingresso alle unità tramite vano scala
ingresso al primo appartamento sito al piano terra e privo di barriere architettoniche, con cucina, locale soggiorno o zona letto, bagno, ripostiglio e graziosa corte interna esclusiva
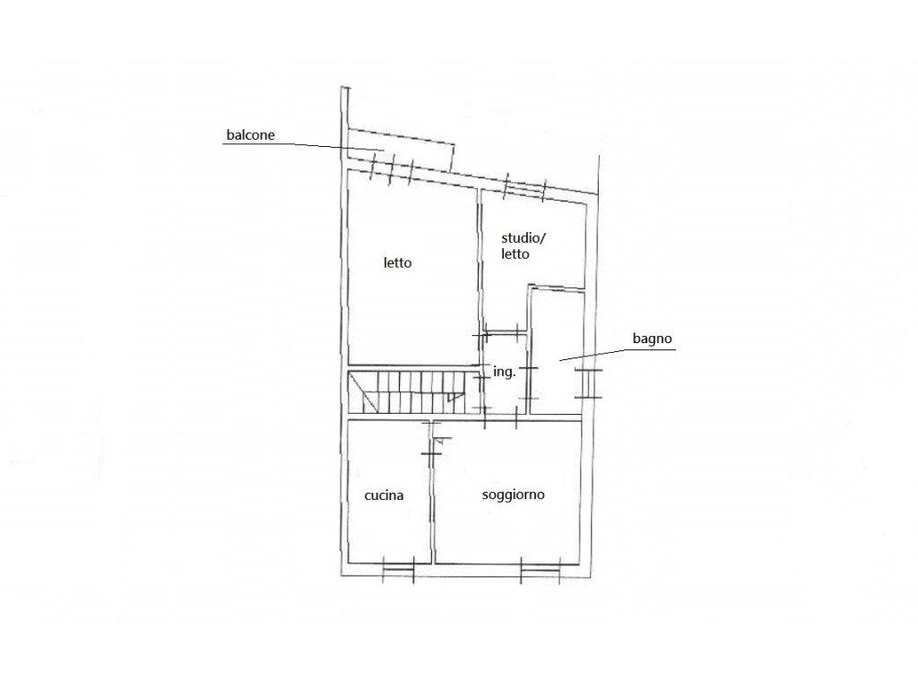
Dal vano scale si accede al secondo appartamento posto al piano primo e distribuito con:
ingresso, soggiorno, cucina abitabile, bagno, camera matrimoniale con balcone e ulteriore camera ad uso studio o letto
La soluzione si presenta in ottime condizioni perfettamente abitabile e rappresenta un’interessante opportunità sia come abitazione principale sia come investimento in una delle zone più richieste del centro storico
per ulteriori informazioni chiamateci allo 054328029 oppure scrivete a : info@damaimmobiliare.com
L’agenzia Dama Immobiliare è lieta di proporre in vendita una graziosa casa bifamiliare libera da cielo a terra situata in zona centrale di pregio e adiacente a comodi parcheggi pubblici
L’immobile si presenta in ottimo stato ed è inserito in un contesto silenzioso e privo di traffico ideale per chi desidera vivere il centro senza rinunciare alla tranquillità
La proprietà è così composta
Al piano terra garage con basculante automatizzata che garantisce un agevole accesso alle autovetture
ingresso alle unità tramite vano scala
ingresso al primo appartamento sito al piano terra e privo di barriere architettoniche, con cucina, locale soggiorno o zona letto, bagno, ripostiglio e graziosa corte interna esclusiva
Dal vano scale si accede al secondo appartamento posto al piano primo e distribuito con:
ingresso, soggiorno, cucina abitabile, bagno, camera matrimoniale con balcone e ulteriore camera ad uso studio o letto
La soluzione si presenta in ottime condizioni perfettamente abitabile e rappresenta un’interessante opportunità sia come abitazione principale sia come investimento in una delle zone più richieste del centro storico
per ulteriori informazioni chiamateci allo 054328029 oppure scrivete a : info@damaimmobiliare.com
Dove si trova?
Contatto e richiesta informazioni
Invia una richiesta all'agenzia
CA_08
Autorizzo il trattamento dei miei dati personali in base art. 13 del reg. eu 679/2016